Hej! zaczekaj :)
W Twoim koszyku są produkty!
Mamy dla Ciebie kupon rabatowy: koszyk
Użyj kuponu "koszyk" i uzyskaj od 5 do 15% rabatu w zależności od wartości koszyka. Sprawdź teraz! [rabat nie dotyczy produktów w promocji]

Administratorem danych osobowych jest Domfort Sp. z o.o. . Przetwarzamy je w celu przesłania odpowiedzi na zapytanie. Więcej informacji dotyczących przetwarzania danych osobowych znajduje się w polityce prywatności.
Cena dostawy dotyczy tego produktu (w wybranym wariancie - jeśli dotyczy). Może się ona zmienić po dodaniu innych produktów do koszyka.
Dostępność: w sprzedaży
Dostawa: 30 dni
Kod produktu: TORA/L
Producent: Kratki PRO
Wybierz wariant produktu:
Poszczególne warianty mogą różnić się ceną
Koza Tora L (najwyższa z serii Tora) może ogrzewać 80 m2. Urządzenie należy do serii Kratki Pro, co oznacza że objęte jest 10-letnią gwarancją (po rejestracji produktu). Urządzenie spełnia wymagania Ekoprojektu oraz normy BImSchV 2, wyznaczającej maksymalną emisję CO.

Przestronne przeszklenie pieca Tora L uatrakcyjnia wizję ognia, a dodatkowa ozdobna szyba typu glass podkreśla jego urok. Wnętrze pieca wyłożone TERMOTEC doskonale kontrastuje z bryłą, nadając całości nowoczesnego wyglądu. Solidna klamka, ułatwia szczelne zamknięcie drzwiczek. Dzięki temu urządzenie doskonale sprawdzi się w domach z rekuperacją.
Efektywniejsze spalanie i dłuższe utrzymywanie temperatury następuje dzięki wyłożeniu komory spalania TERMOTEC, materiałem akumulującym ciepło, który podwyższa temperaturę w palenisku.
Dopalanie cząstek opału następuje dzięki deflektorowi, który wydłuża drogę spalin. Proces ten podnosi również efektywność spalania oraz gwarantuje lepsze wykorzystanie energii, a tym samym minimalizuje emisję szkodliwych substancji do atmosfery. Dodatkowo w na wylocie spalin została zamontowana przesłona, która pełni podobną funkcję do deflektora, co jeszcze bardziej podnosi efekty pracy urządzenia.
Dostarczanie powietrza do wkładu odbywa się z zewnątrz, dzięki wbudowanemu króćcowi dolotu powietrza fi 100 mm. Sam dolot można podłączyć do pieca od tyłu lub od dołu. Jego regulacja odbywa się za pomocą przepustnicy ustawianej jednym regulatorem znajdującą się poniżej drzwiczek, co wyklucza błędy w niewłaściwym użytkowaniu. Cały mechanizm działa bardzo cicho i bezawaryjnie.
We wkładzie zastosowany jest potrójny system dopowietrzenia komory spalania. Powietrze pierwotne, ułatwiające rozpalanie drewna, dostarczane jest pod ruszt. Powietrze wtórne - zapewniające ekologiczne spalanie - dostarczane jest otworami w tylnej ścianie.
Dodatkowo w piecu zastosowany jest system czystej szyby (kurtyna powietrza), czyli powietrze dostarczane jest bezpośrednio na szybę poprzez system kanałów umieszczonych na bokach kominka. W ten sposób dostarczany jest tlen do górnej części komory spalania, w której następuje dopalanie gazów powstałych w procesie spalania drewna, co dodatkowo ogranicza emisję szkodliwego CO do atmosfery.
Parametry fizyczne kozy Tora L:
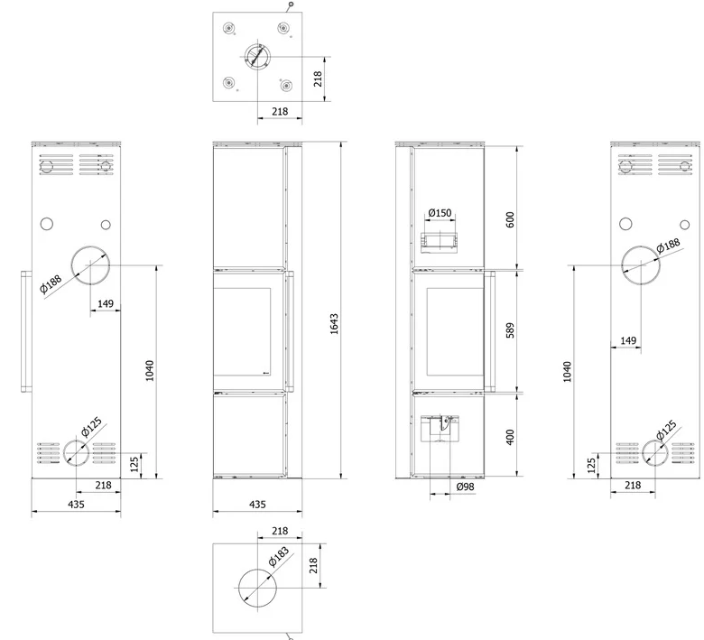
Rysunek szczegółowy pieca Tora L z wymiarami:

Tora L karta energetyczna
Tora L instrukcja
![]()
Darmowa dostawa
Dostawa gratis od 999,00 zł. Bezpłatny zwrot.
Produkty dostępne na www.extrakominki.pl są fabrycznie nowe i przeznaczone do sprzedaży na terenie Polski i UE. Wszystkie towary objęte są gwarancją, posiadają odpowiednie certyfikaty jakości i normy ekologiczne.
Możesz dokonać zwrotu produktów zakupionych w naszym sklepie. W tym celu należy w ciągu 14 dni od otrzymania przesyłki zgłosić chęć odstąpienia od zakupu, a następnie w kolejne 14 dni odesłać towar. Zwrot lub reklamację należy zgłosić drogą e-mailową na adres: biuro@extrakominki.pl.
Piec stalowy Tora/L 8 kW fi 150 mm
Dostępność: w sprzedaży
Dostawa: 30 dni
Kod produktu: TORA/L
EAN: 5903751205395
Producent: Kratki PRO
Materiał: Urządzenie stalowe
Paliwo, opał: Drewno
Przeszklenie: Narożne Lewe
Otwieranie drzwi: Na bok
Dolot powietrza: Tak
Dom z rekuperacją: Tak
Szerokość: 41-50 cm
Moc nominalna: 8 kW (do 80 m²)
Producent: Kratki / Kratki Pro
Piec TORA w rozmiarze M to piec stalowy wykończony płytami ze spieku kwarcowego lub panelami szklanymi. Wyposażony w narożne drzwi ozdobione czernionym przeszkleniem, dla pogłębienia wizji ognia.
Pliki cookies umożliwiają poprawne działanie strony i pomagają nam dostosować ofertę do Twoich potrzeb. Możesz zaakceptować wykorzystanie przez nas wszystkich tych plików i przejść do sklepu lub dostosować użycie plików do swoich preferencji, wybierając opcję "Dostosuj zgody".
W tym miejscu możesz określić swoje preferencje w zakresie wykorzystywania przez nas plików cookies.
Te pliki są niezbędne do działania naszej strony internetowej, dlatego też nie możesz ich wyłączyć.
Te pliki umożliwiają Ci korzystanie z pozostałych funkcji strony internetowej (innych niż niezbędne do jej działania). Ich włączenie da Ci dostęp do pełnej funkcjonalności strony.
Te pliki pozwalają nam na dokonanie analiz dotyczących naszego sklepu internetowego, co może przyczynić się do jego lepszego funkcjonowania i dostosowania do potrzeb Użytkowników.
Dzięki tym plikom możemy prowadzić działania marketingowe.
Hej! zaczekaj :)
W Twoim koszyku są produkty!
Mamy dla Ciebie kupon rabatowy: koszyk
Użyj kuponu "koszyk" i uzyskaj od 5 do 15% rabatu w zależności od wartości koszyka. Sprawdź teraz! [rabat nie dotyczy produktów w promocji]