Hej! zaczekaj :)
W Twoim koszyku są produkty!
Mamy dla Ciebie kupon rabatowy: koszyk
Użyj kuponu "koszyk" i uzyskaj od 5 do 15% rabatu w zależności od wartości koszyka. Sprawdź teraz! [rabat nie dotyczy produktów w promocji]

Administratorem danych osobowych jest Domfort Sp. z o.o. . Przetwarzamy je w celu przesłania odpowiedzi na zapytanie. Więcej informacji dotyczących przetwarzania danych osobowych znajduje się w polityce prywatności.
Cena dostawy dotyczy tego produktu (w wybranym wariancie - jeśli dotyczy). Może się ona zmienić po dodaniu innych produktów do koszyka.
Dostępność: spodziewana dostawa
Dostawa: Zapytaj: biuro@extrakominki.pl
Kod produktu: unico/Nemo/2/Topeco
Producent: Unico
Wybierz wariant produktu:
Poszczególne warianty mogą różnić się ceną
Wkład Nemo 2 Topeco jest kominkiem wyprodukowanym w Polsce. Spełnia normy anty-smogowe EkoProjekt 2022 oraz restrykcyjne przepisy BimSchV 2. Kominek nadaje się do domów z rekuperacją i wentylacją mechaniczną.

Wkłady kominkowe UNICO to urządzenia wysokiej jakości i wytrzymałości. Producent gwarantuje ich sprawne działanie przez długi czas, dzięki czemu kominki mają 12 lat gwarancji (gwarancja obejmuje korpus wkładu).
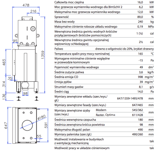
Kominek Nemo 2 Topeco ogrzewa do 160 m2. Do układu wodnego (C.O) oddawana jest moc 12 kW. Ciepło o wartości 4 kW oddawane jest przez szybę i korpus kominka.
W standardzie:
Wyposażenie dodatkowe:
Dane techniczne:
Wygląd kominków firmy UNICO można dostosować do swoich wymagań. Personalizacji podlegają takie elementy jak rodzaj wyłożenia wnętrza paleniska (dostępny także w kolorze czarnym), rodzaj szyby i klamka. Poniższe grafiki prezentują wykończenie kominka w różnych wersjach (zdjęcia przykładowego modelu):

Zamawiając swój kominek UNICO masz także możliwości wyboru koloru klamki. Należy jednak pamiętać, że:
Do każdego wkładu kominkowego UNICO istnieje możliwość zamówienia kilku rodzajów ramek (blend) maskujących, zakładanych na front kominka. Różnią się one przede wszystkim głębokością i wielkością:
Ramki płytkie, licujące z frontem kominka:
Ramki głębokie, do zagłębienia kominka w obudowie - umożliwiają montaż dolnej kratki typu luft w dowolnym miejscu pod fasadą kominka.

![]()
Darmowa dostawa
Dostawa gratis od 999,00 zł. Bezpłatny zwrot.
Produkty dostępne na www.extrakominki.pl są fabrycznie nowe i przeznaczone do sprzedaży na terenie Polski i UE. Wszystkie towary objęte są gwarancją, posiadają odpowiednie certyfikaty jakości i normy ekologiczne.
Możesz dokonać zwrotu produktów zakupionych w naszym sklepie. W tym celu należy w ciągu 14 dni od otrzymania przesyłki zgłosić chęć odstąpienia od zakupu, a następnie w kolejne 14 dni odesłać towar. Zwrot lub reklamację należy zgłosić drogą e-mailową na adres: biuro@extrakominki.pl.
Kominek z płaszczem wodnym Unico Nemo 2 Topeco 16 kW
Dostępność: spodziewana dostawa
Dostawa: Zapytaj: biuro@extrakominki.pl
Kod produktu: unico/Nemo/2/Topeco
EAN: -
Producent: Unico
Materiał: Urządzenie stalowe
Paliwo, opał: Drewno
Przeszklenie: Proste
Otwieranie drzwi: Na bok
Dolot powietrza: Tak
Dom z rekuperacją: Tak
Szerokość: 61-70 cm
Moc nominalna: 16 + kW (160 + m²)
Producent: -
Wkład z płaszczem wodnym Wkład z płaszczem wodnym Nemo 2 Topeco to kominek posiadający doskonałe parametry techniczne oraz precyzyjne wykonanie. Wkład spełnia także wytyczne EkoProjekt.
Pliki cookies umożliwiają poprawne działanie strony i pomagają nam dostosować ofertę do Twoich potrzeb. Możesz zaakceptować wykorzystanie przez nas wszystkich tych plików i przejść do sklepu lub dostosować użycie plików do swoich preferencji, wybierając opcję "Dostosuj zgody".
W tym miejscu możesz określić swoje preferencje w zakresie wykorzystywania przez nas plików cookies.
Te pliki są niezbędne do działania naszej strony internetowej, dlatego też nie możesz ich wyłączyć.
Te pliki umożliwiają Ci korzystanie z pozostałych funkcji strony internetowej (innych niż niezbędne do jej działania). Ich włączenie da Ci dostęp do pełnej funkcjonalności strony.
Te pliki pozwalają nam na dokonanie analiz dotyczących naszego sklepu internetowego, co może przyczynić się do jego lepszego funkcjonowania i dostosowania do potrzeb Użytkowników.
Dzięki tym plikom możemy prowadzić działania marketingowe.
Hej! zaczekaj :)
W Twoim koszyku są produkty!
Mamy dla Ciebie kupon rabatowy: koszyk
Użyj kuponu "koszyk" i uzyskaj od 5 do 15% rabatu w zależności od wartości koszyka. Sprawdź teraz! [rabat nie dotyczy produktów w promocji]